Thiết Kế Biệt Thự 1 Tầng Đẹp Tại Bình Thuận
- Địa chỉ: 99 Hùng Vương, Thị trấn Tân Nghĩa, Huyện Hàm Tân, Tỉnh Bình Thuận
- Diện tích: 800m² (20m x 40m)
- Phong cách: Truyền thống – Tối giản – Gần gũi thiên nhiên
Thiết Kế Biệt Thự 1 Tầng Đẹp Tại Bình Thuận | Chủ Đầu Tư Anh Đỗ Tài | ATV Construction
Tên dự án: Biệt thự nhà vườn 1 tầng hình chữ U
Địa điểm: 99 Hùng Vương, Thị trấn Tân Nghĩa, Huyện Hàm Tân, Tỉnh Bình Thuận
Chủ đầu tư: Anh Đỗ Tài
Diện tích khu đất: 800m² (20m x 40m)
Thiết kế: KTS Nguyễn Huy Hoàng
Đơn vị thực hiện: ATV Construction
Hạng mục: Thiết kế kiến trúc & nội thất biệt thự trọn gói
Phong cách: Truyền thống – Tối giản – Gần gũi thiên nhiên

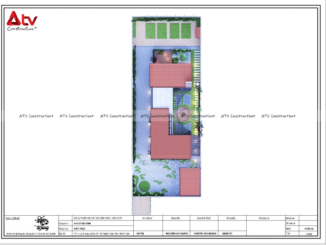
Mẫu Biệt Thự 1 Tầng Hình Chữ U – Đơn Giản Nhưng Cá Tính
Biệt thự được thiết kế theo bố cục hình chữ U, một lựa chọn tối ưu cho những ai yêu thích sự thông thoáng, tiện nghi và có khu đất rộng. Với mặt bằng ngang 20m và chiều sâu 40m, kiến trúc sư đã tận dụng tối đa diện tích để tạo nên một không gian sống thoáng đãng, gần gũi thiên nhiên, nhưng vẫn mang phong cách mạnh mẽ, hiện đại.
Tông Màu & Hình Khối – Tối Giản Mà Tinh Tế
Điểm nhấn đầu tiên khi nhìn vào bản thiết kế là mái xiên lệch góc – phá cách và tạo nên một khối kiến trúc độc đáo so với các biệt thự mái bằng hoặc mái Thái truyền thống. Mái nhà được thiết kế rộng, vươn ra, vừa đảm bảo thẩm mỹ vừa che nắng – chắn mưa hiệu quả cho các khung cửa kính lớn.
Tường được hoàn thiện bằng chất liệu gạch trần và bê tông mài, kết hợp lam gỗ và kính, mang lại cảm giác mộc mạc, gần gũi nhưng không kém phần cá tính và hiện đại.
Thiết Kế Mặt Bằng Biệt Thự 1 Tầng – Hình Chữ U Rộng Rãi
Bản vẽ thiết kế biệt thự chia công năng khoa học với bố cục chữ U – hai nhánh bên là các khu vực riêng tư, ở giữa là không gian sinh hoạt chung, cụ thể:
✦ Cánh trái:
-
2 phòng ngủ khép kín dành cho các thành viên trong gia đình, mỗi phòng đều có cửa sổ lớn đón ánh sáng
-
Không gian mở ra tiểu cảnh bên hông biệt thự, tạo cảm giác thư giãn
✦ Cánh phải:
-
2 phòng ngủ, trong đó có phòng master tích hợp phòng thay đồ – vệ sinh riêng
-
Kết nối trực tiếp với khu vực sân vườn nhỏ, giúp không gian phòng ngủ luôn mát mẻ
✦ Phần trung tâm:
-
Phòng khách và khu vực bếp – ăn, được bố trí liên thông theo chiều ngang, mở ra hai bên sân vườn
-
Cửa kính trượt lớn ở chính diện và hai bên giúp không gian sinh hoạt luôn ngập tràn ánh sáng và gió trời
-
Từ đây có thể nhìn toàn cảnh sân trước, hồ nước tiểu cảnh hoặc vườn cây
Hệ Cửa Kính 4 Mặt – Không Gian Mở Gần Gũi Thiên Nhiên
Với lợi thế hình chữ U và diện tích rộng rãi, kiến trúc sư đã khéo léo sử dụng hệ cửa kính lớn bao quanh 4 mặt biệt thự, giúp:
-
Tăng tối đa ánh sáng tự nhiên
-
Tạo cảm giác mở rộng không gian sống
-
Tối ưu lưu thông không khí
-
Hòa quyện giữa không gian bên trong và thiên nhiên bên ngoài
Mỗi góc trong biệt thự đều có view nhìn ra cây xanh, thảm cỏ hoặc sân vườn, mang lại cảm giác thư giãn đúng chuẩn biệt thự nghỉ dưỡng.
Phối Cảnh Ngoại Thất – Hòa Mình Vào Thiên Nhiên
Không gian ngoại thất được thiết kế chỉn chu với:
-
Hàng cây cọ, cau, dừa cảnh và cây lá lớn tạo bóng mát và điểm nhấn thị giác
-
Chậu cây đá vuông thấp tạo ranh giới mềm mại giữa biệt thự và vườn
-
Đường dạo lát đá tự nhiên, dẫn lối từ cổng vào nhà một cách nhẹ nhàng, hài hòa
Mẫu Biệt Thự 1 Tầng Đáng Sống Tại Bình Thuận
Mẫu biệt thự của anh Đỗ Tài tại Hàm Tân – Bình Thuận không chỉ là nơi để ở, mà là không gian sống lý tưởng cho mọi thành viên trong gia đình. Thiết kế đơn giản, thoáng đãng, tối ưu ánh sáng, hài hòa cùng thiên nhiên – đúng với tinh thần “sống chậm – sống xanh – sống khỏe”.
Tại Sao Nên Chọn ATV Construction Thiết Kế Biệt Thự?
-
✅ Tư vấn thiết kế theo yêu cầu cá nhân hóa
-
✅ KTS có kinh nghiệm, am hiểu kiến trúc địa phương
-
✅ Triển khai bản vẽ chi tiết – phối cảnh 3D thực tế
-
✅ Đội ngũ thi công chuyên nghiệp, cam kết chất lượng – tiến độ
Liên hệ tư vấn thiết kế biệt thự:
📞 Hotline: 0931 89 99 22
🌐 Website: atvconstruction.com
📍 Địa chỉ: 38 Đường 62TML, Thạnh Mỹ Lợi, Quận 2, TPHCM


















